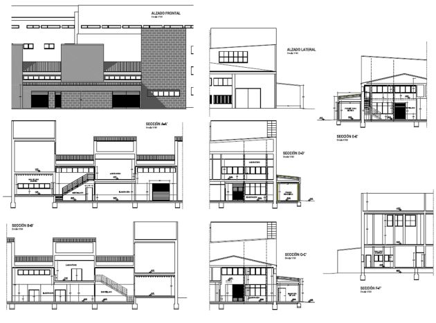
La Escuela Técnica Superior de Ingenieros Agrónomos de Ciudad Real contará el próximo curso con una completa bodega experimental. Se trata unas instalaciones que tendrán un concepto abierto y que permitirán conocer el proceso completo desde la recepción de la uva hasta el embotellado.
Será una bodega experimental de pequeñas dimensiones, unos 400 metros cuadrados, que se ubicará en el interior de la propia Facultad, en un espacio que en estos momentos apenas tiene uso, y se construirá unas pequeñas instalaciones para la entrada del fruto.
Esta infraestructura que va a permitir que los alumnos puedan realizar prácticas de manera continua, tanto de vino tinto como de blanco, por lo que no solo se hará vino convencional, también se podrá experimentar con tipos de fermentaciones y variedades.
En la construcción de esta bodega experimental se van a invertir en torno a un millón de euros y servirá tanto para los alumnos de enología como de agrónomos. Se trata de la única instalación de estas características con las que va a contar la Universidad de Castilla La Mancha.
El director de la Escuela Superior de Ingeniería Agrícola, Jesús Antonio López Perales, detalló en el programa de SER Ciudad Real ‘Entre Vinos’ el proyecto, a preguntas del periodista Agustín Cacho Borrás y de Antonio Gómez Olmos, editor de www.agroclm.com.:




























